85
- Picture 1
- Picture 2
- Picture 3
- Picture 4
- Picture 5
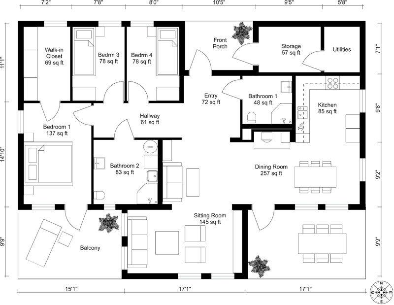
HIGHLIGHTS:
DESCRIPTION:
AREA DETAILS:
ARCHITECT DETAILS:





