370
- Best
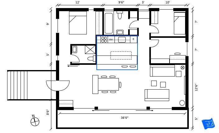
- 3D View 2 of a house, www.google.com
- Plan 2
- This is a captio
HIGHLIGHTS:
DESCRIPTION:
AREA DETAILS:
ARCHITECT DETAILS:







